At Torres Property we bring over a decade of real estate industry knowledge to each of our properties that we market for sale. Giving our clients detailed attention with the latest marketing and exposure allows for maximum results.

Sold

SOLD

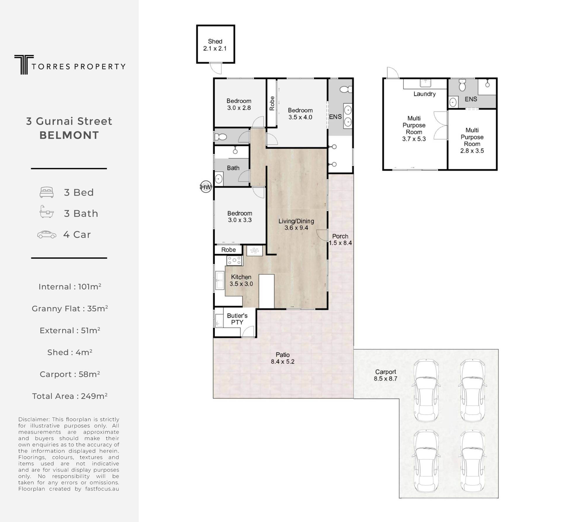
3 Gurnai Street, Belmont

3 Beds 3 Baths 2 Cars 627m2 Land Area

Why 3 Gurnai Street?

Renovated Cul-de-Sac Sanctuary with Alfresco Oasis

Revitalised into a residence of remarkable living and exquisite entertaining, this renovated home rests behind a breezy northern aspect atop 627sqm in a beautiful Belmont cul-de-sac.

Immaculately transformed to ensure an enviable lifestyle in this serene suburban setting, the single-level, double-brick house showcases modern style and fluid functionality.

Clean, crisp and expertly appointed, the alluring interiors meander across the open living and dining area to a sublime chef's kitchen, where waterfall stone cascades over the benchtops and breakfast bar, extending to the butler's pantry and Westinghouse appliances.

Culinary delights and ambient comfort continue outdoors on the expansive alfresco area. Featuring a pizza oven on the undercover terrace, a sunlit patio for firepits, and lush lawns surrounding the manicured greenery and veggie gardens, this private oasis unveils multiple retreats and open space for intimate gatherings and large-scale entertaining. With room for kids to play and add an above-ground pool or spa, you will relish the remarkable relaxation that awaits.

The house features 3 bedrooms and three luxurious bathrooms, including the master suite boasting dual vanities and double showers in a private ensuite. A detached multipurpose area adds to the floor plan, providing versatile space for family, guests, work, or hobbies.

Additional features:
- Remote double carport, garden shed
- Westinghouse appliances, including a 900mm oven
- Outdoor pizza oven, veggie garden and shade blinds
- Split system air-conditioning, 6kW solar, solar hot water
- Security cameras, security screens

Peacefully tucked away in a quiet cul-de-sac, this home offers a relaxed lifestyle only footsteps from the idyllic Minnippi Parklands. Belmont Road Shopping Village is 900m away, and you are 3.2km from Westfield Carindale. Childcare centres are a short walk from your door, and children are within the Tingalpa State School catchment and close to private colleges. Buses and the Gateway Motorway are easily accessible, and you are only 12km to the CBD and 15 minutes to the Manly foreshore.

Disclaimer: Whilst every care is taken in the preparation of the information contained in this marketing, Torres Property will not be held liable for any errors in typing or information. All interested parties should rely upon their own enquiries in order to determine whether or not this information is in fact accurate.
Renovated Cul-de-Sac Sanctuary with Alfresco Oasis
3 Gurnai Street
Belmont QLD 4153

Further Details

Address 3 Gurnai Street, Belmont
Price SOLD
Property Type Residential
Property ID 2127
Category House
Land Area 627m2