At Torres Property we bring over a decade of real estate industry knowledge to each of our properties that we market for sale. Giving our clients detailed attention with the latest marketing and exposure allows for maximum results.

Sold

SOLD

110 Martha Street, Camp Hill

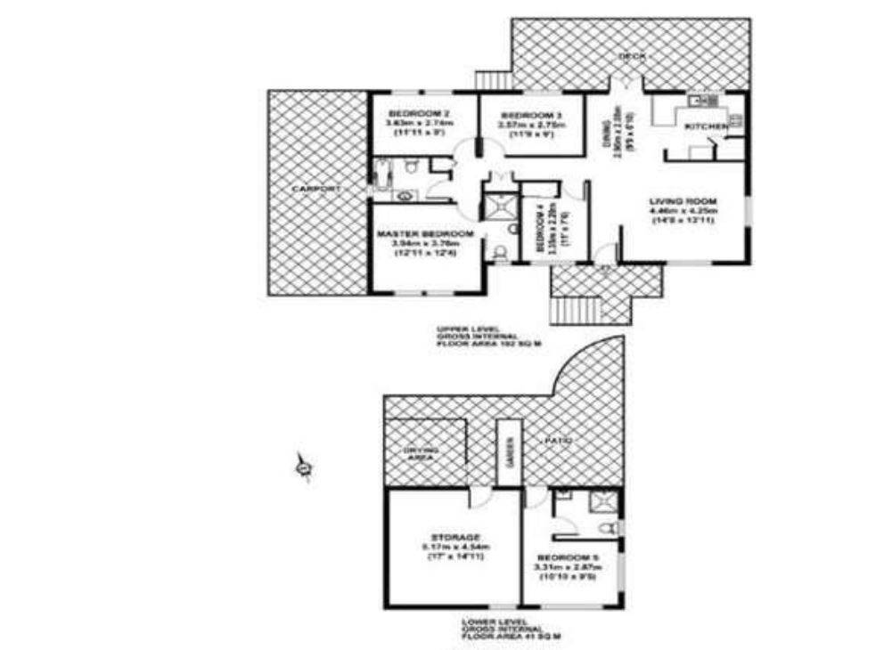
4 Beds 3 Baths 2 Cars 503m2 Land Area

Why 110 Martha Street?

Prime Investment with Potential

Grow your exquisite property portfolio with this four bedroom home situated in the heart of the Camp Hill's finest Sold properties.
Sitting upon 503m2 this nicely presented family home would suit an array of opportunities.

Timber floors and an upgraded modern kitchen encourage immediate move in scenario. Air conditioning and fans in the home make it comfortable through summer, although with the windows and french doors open there is a beautiful airflow.

The spacious timber deck is set off the kitchen dining areas and overlooks the backyard.

Under the home is a 5th room that was set up as a bedroom with a shower and toilet. This space can be used as a teenage or visitor retreat, or even a small home business office (perhaps rent it out for a little extra income). Extra storage room is also under croft. A big shed in the rear and a carport complete the picture.

Stroll down to trendy Martha Street Village, into a hub of cafes and restaurants embracing a vibrant local lifestyle including the nearby Camp Hill Marketplace. Also an array of supreme schools and childcare centres including Camp Hill State School, Whites Hill State College, Loreto, Villanova and Churchie Colleges. Close to public transport options and a short drive to Westfield Carindale.

A supreme attraction could be that the home can be removed (STCA) or renovated further to suit your desires with capital growth. It is Zoned Res BR3.
Design your dream home and build in this blue chip location (subject to council approval).

Alternatively, simply enjoy the charming character of the home which would be a great base for any future renovation, adding a brilliant scope for growth.

Going to Auction 1st March if not sold prior.

Disclaimer:
This property is being sold by auction or without a price and therefore a price guide cannot be provided. The website may have filtered the property into a price bracket for website functionality purposes.
Prime Investment with Potential
110 Martha Street
Camp Hill QLD 4152

Further Details

Address 110 Martha Street, Camp Hill
Price SOLD
Property Type Residential
Property ID 23
Category House
Land Area 503m2