At Torres Property we bring over a decade of real estate industry knowledge to each of our properties that we market for sale. Giving our clients detailed attention with the latest marketing and exposure allows for maximum results.

For Lease

$850 per Week

3/35 Burrai St, Morningside

3 Beds 2 Baths 1 Cars

Why 3/35 Burrai St?

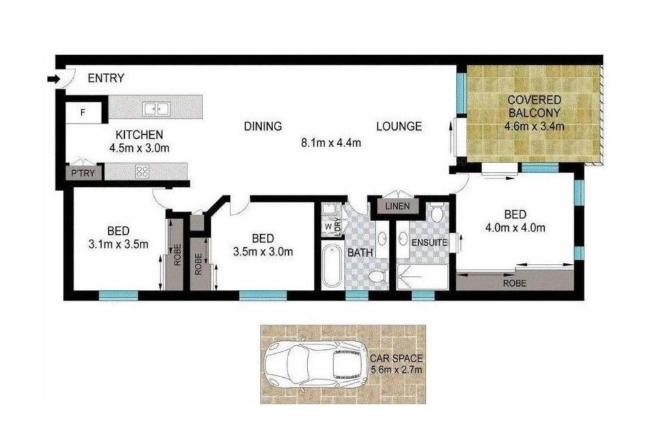
Bright and Spacious 3-Bedroom Apartment in Prime Position

This bright and contemporary apartment offers a perfect balance of space, comfort and convenience, ideal for families and professionals alike. Boasting three generous bedrooms, open-plan living and a large private balcony, the home seamlessly blends relaxed living with functional, stylish spaces.

The open-plan, air-conditioned living and dining areas are complemented by a modern kitchen with sleek finishes, ample storage, a double sink, oven, and dishwasher, perfect for family meals or entertaining friends. Flowing from the living space, the balcony offers a private outdoor retreat for relaxing or enjoying morning coffee.

The master suite is a private sanctuary, complete with an ensuite and direct balcony access. Two additional bedrooms provide ample space for children or guests. Split system air conditioning ensures comfort year-round. Practicality and convenience are well considered, with generous storage throughout the apartment and a secure, dedicated car space.

Property Features:
- Open-plan living, dining, and kitchen with modern appliances
- Large private balcony for relaxing or entertaining
- Master retreat with ensuite and balcony access
- Two additional, well positioned bedrooms with ceiling fans and built in robes
- Ample storage throughout
- Secure, dedicated car space

Set in a highly desirable part of Morningside, this apartment provides easy access to everyday amenities, including Coles, Woolworths, and local cafes. Families will enjoy nearby parks and recreational areas, while professionals benefit from excellent transport links, with two nearby train stations, the Hawthorne Ferry Terminal and easy access to the Gateway Motorway. Brisbane CBD is just 15 minutes away, and Oxford Street, Bulimba - with boutique stores, dining, and weekend entertainment, is only a short stroll from your door.

*Disclaimer*

The property is unfurnished.

Book your inspection online!

Click on the “Request a time” button under the open for inspections times - then choose a date and time available that suits you to inspect.

*** By registering for an inspection you will be immediately informed of any updates, changes or cancellations for your property appointment. If no one registers for an inspection time - then that inspection may not proceed. If there are no times already scheduled, we advise you to still register and as soon as times are set, you will be informed of the date and time.***

Disclaimer: Whilst every care is taken in the preparation of the information contained in this marketing, Torres Property will not be held liable for any errors in typing or information. All interested parties should rely upon their own enquiries in order to determine whether or not this information is in fact accurate.

Inspections

Tuesday 16 December 4:45 PM - 5:00 PM

Ready to enquire on 3/35 Burrai St, Morningside?

Bright and Spacious 3-Bedroom Apartment in Prime Position
3/35 Burrai St
Morningside QLD 4170

Further Details

Available Friday 19 December 2025
Address 3/35 Burrai St, Morningside
Price $850 per Week
Property Type Rental
Property ID 2369
Category Apartment